Zurück
Penthouse-Wohnung mit riesiger Terrasse, barrierefreie 3-Zimmer-Wohnung in beliebter Lage von Varel
Vermietung
Waldstraße
23,
26316
Varel
1.050€
Zum PDF Exposé ->
Alle 22 Bilder anzeigen
Information
Objektnummer:
39107348-1
Postleitzahl:
26316
Stadt:
Varel
Anzahl Zimmer:
3
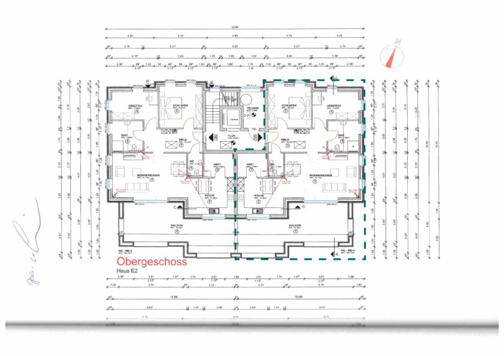
Wohnfläche:
109.77
Anzahl Schlafzimmer:
1
Energieausweis:
liegt zur Besichtigung vor
Baujahr:
2022
Badezimmer:
1
Etagen:
2
Objektart:
Wohnung
Status:
Vermietung
Hausgeld:
400€
Stellplätze:
1
Beschreibung
Besonderheiten der Immobilie
Lage der Immobilie
Sonstiges
Sie interessieren sich für diese Immobilie?
Ich bestätige, die
Datenschutzbestimmungen
gelesen und akzeptiert zu haben.
Nachricht senden