🚀 Bald neu: Fair. Transparent. Ohne Provision.
Unser verbessertes Angebot kommt in Kürze!
Zurück
Einmalige Gelegenheit! Das Objekt lässt sich auf Ihre Pläne ein.
Verkauf
74343
Sachsenheim
530.000€
Zum PDF Exposé ->
Alle 18 Bilder anzeigen
Information
Objektnummer:
87778340-1
Postleitzahl:
74343
Stadt:
Sachsenheim
Anzahl Zimmer:
7
Wohnfläche:
200
Energieausweis:
liegt zur Besichtigung vor
Baujahr:
1900
Badezimmer:
3
Objektart:
Haus
Status:
Verkauf
Garage:
2
Stellplätze:
2
Beschreibung
Besonderheiten der Immobilie
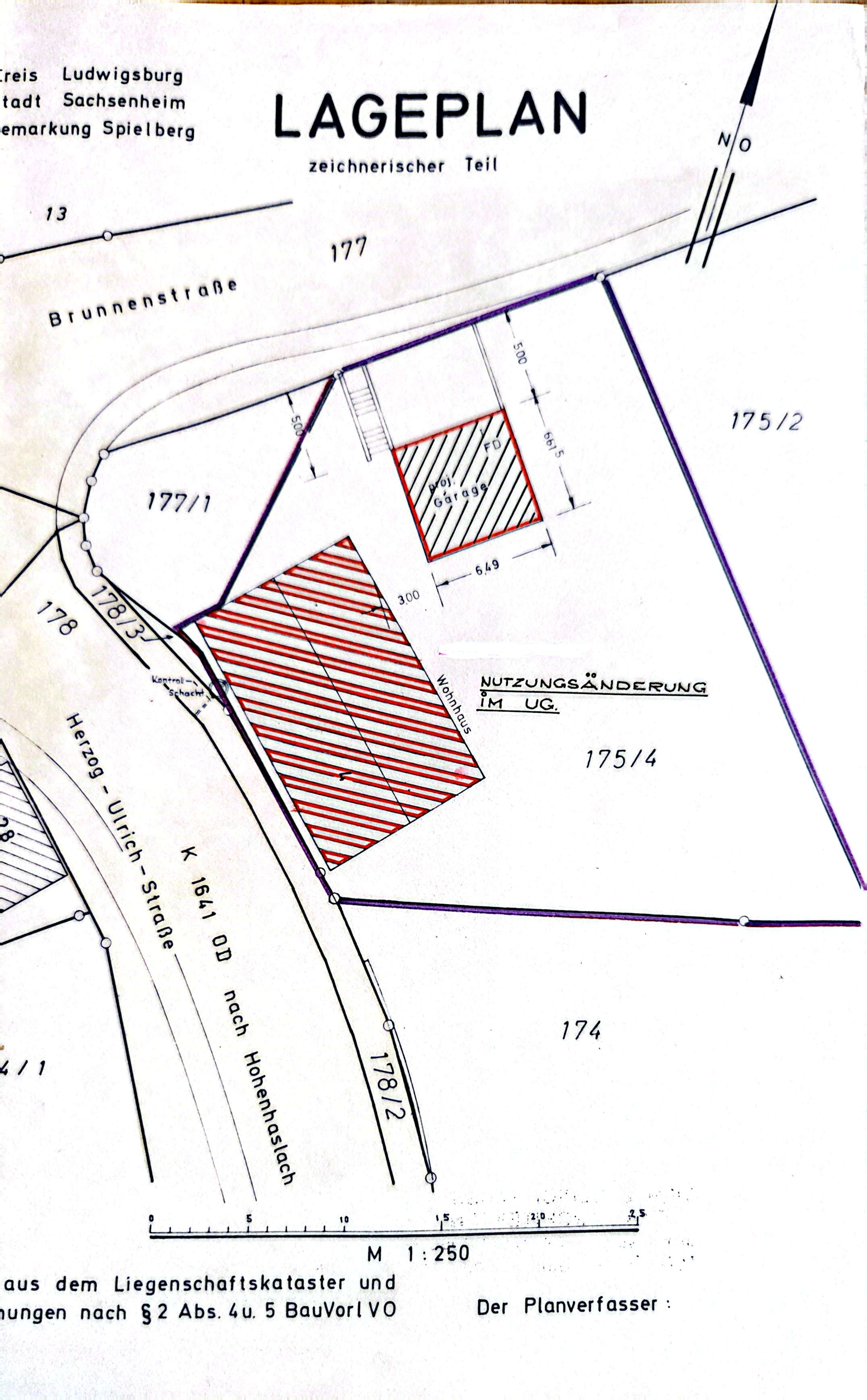
Lage der Immobilie
Sie interessieren sich für diese Immobilie?
Ich bestätige, die
Datenschutzbestimmungen
gelesen und akzeptiert zu haben.
Nachricht senden