Zurück
Traumhafte Maisonette mit seltenem See- & Zugspitzblick, Räume noch frei gestaltbar
Verkauf
86938
Schondorf am Ammersee
1.290.000€
Zum PDF Exposé ->
Alle 16 Bilder anzeigen
Information
Objektnummer:
93210805-1
Postleitzahl:
86938
Stadt:
Schondorf am Ammersee
Anzahl Zimmer:
3
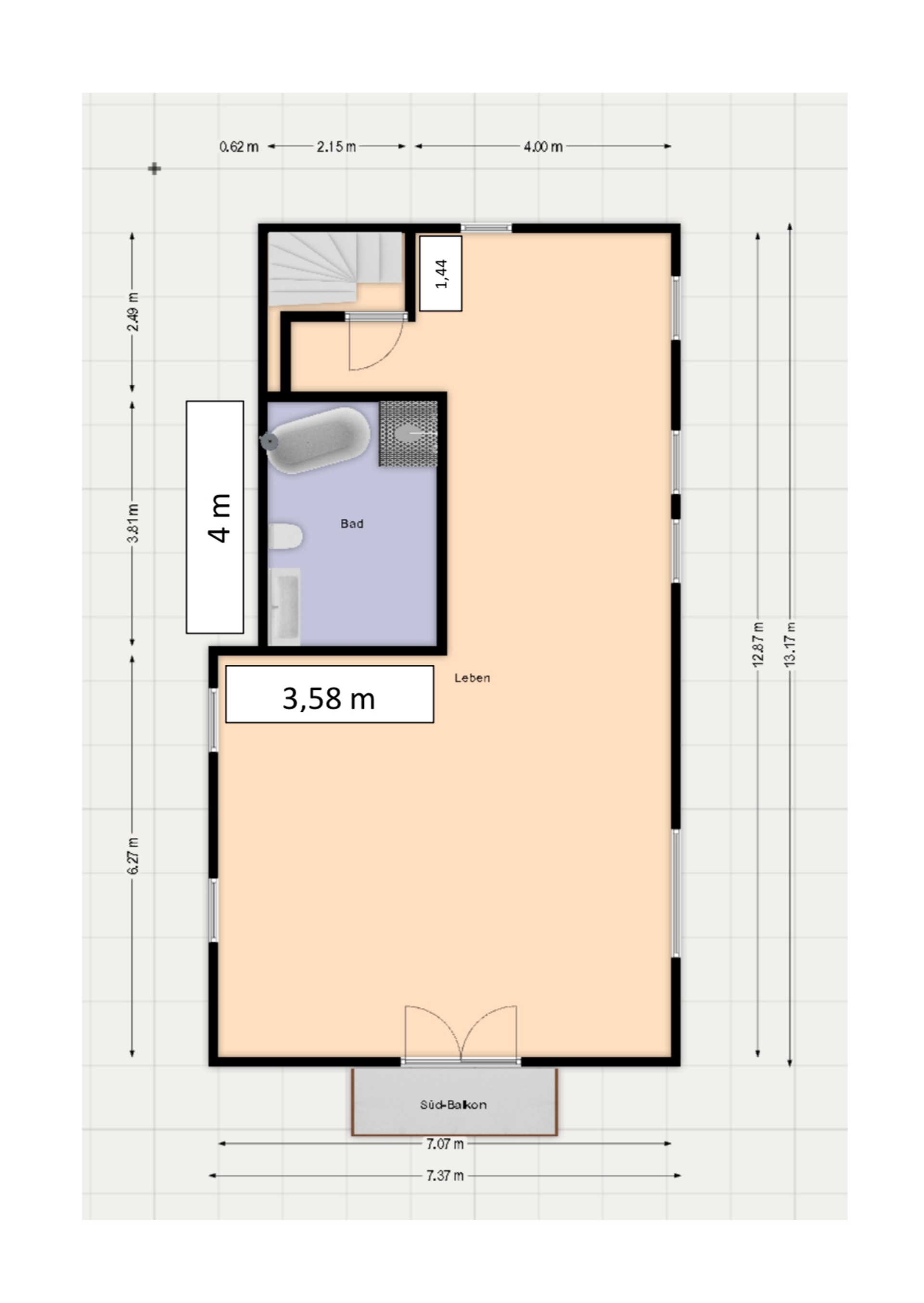
Wohnfläche:
158
Energieausweis:
liegt zur Besichtigung vor
Baujahr:
1875
Badezimmer:
2
Objektart:
Wohnung
Status:
Verkauf
Beschreibung
Sie interessieren sich für diese Immobilie?
Ich bestätige, die
Datenschutzbestimmungen
gelesen und akzeptiert zu haben.
Nachricht senden